18944225536
搜 索
首页
关于我们
公司简介
组织架构
资质证照
案例展示
办公空间
教育机构
餐饮空间
厂房车间
商业空间
酒店宾馆
商场超市
医院诊所
休闲娱乐
服务优势
装修资讯
公司资讯
行业资讯
装修知识
VR体验馆
联系我们
合作品牌
在线报价
当前位置:
网站主页
>
案例展示
>
餐饮空间
>
案例类型
餐饮空间
案例面积
300~500㎡
案例区域
姑苏区
主设计师
葛志杰
案例介绍
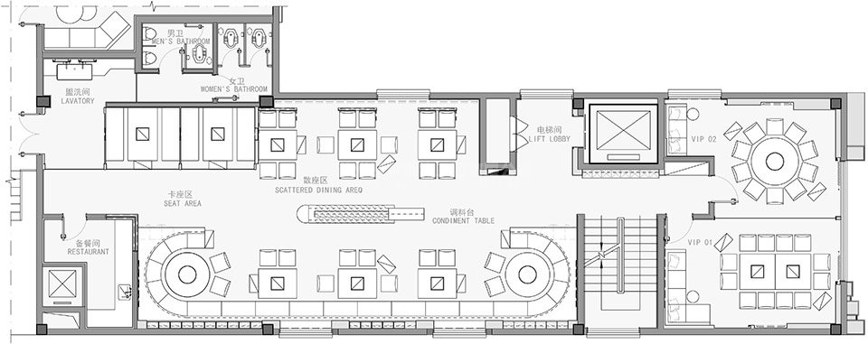
项目名称:十里香火锅店
项目面积:300平米
装修风格:复古
施工周期:42天
设计机构:苏州今和建筑装饰设计有限公司
施工单位:苏州今和建筑装饰设计有限公司
项目简介:项目处于二楼,是一个极其低矮的空间,层高不足2.5米,当设备通过后空间更加低矮,那么如何解决项目本身的制约,并用好项目自带的赋能资源。
设计师希望以形态线条和光影的变化,去打破界限,以勾勒出思维和空间的自生性,来满足人们对未知天体的想象,对火锅物化眷恋。
万里香火锅便把消费群体从原本年轻时尚的青年消费群体,成功延展到了另外一个年龄层次的消费群体身上。
您的称呼
装修类型
装修面积
手机号码
立 即 领 取 200 元 装 修 红 包
每天仅限前20名咨询客户
相关案例
波希米亚风咖啡厅装修设计效果图
查看详情
餐厅简约风
查看详情
精品火锅店装修
查看详情
精品酒店餐厅装修设计
查看详情
×
Close
信息登记
提交
按此要求装修多少钱
10秒获取装修报价清单
温馨提示:报价清单将发送到您的手机
装修预算材料清单
主材费: ?元
辅材费: ?元
人工费: ?元
软装费: ?元(参考价)
立即
计算
项目面积:300平米
装修风格:复古
施工周期:42天
设计机构:苏州今和建筑装饰设计有限公司
施工单位:苏州今和建筑装饰设计有限公司
项目简介:项目处于二楼,是一个极其低矮的空间,层高不足2.5米,当设备通过后空间更加低矮,那么如何解决项目本身的制约,并用好项目自带的赋能资源。
设计师希望以形态线条和光影的变化,去打破界限,以勾勒出思维和空间的自生性,来满足人们对未知天体的想象,对火锅物化眷恋。
万里香火锅便把消费群体从原本年轻时尚的青年消费群体,成功延展到了另外一个年龄层次的消费群体身上。