18944225536
搜 索
首页
关于我们
公司简介
组织架构
资质证照
案例展示
办公空间
教育机构
餐饮空间
厂房车间
商业空间
酒店宾馆
商场超市
医院诊所
休闲娱乐
服务优势
装修资讯
公司资讯
行业资讯
装修知识
VR体验馆
联系我们
合作品牌
在线报价
当前位置:
网站主页
>
案例展示
>
酒店宾馆
>
案例类型
酒店宾馆
案例面积
900㎡及以上
案例区域
太仓市
主设计师
陈航攀
案例介绍
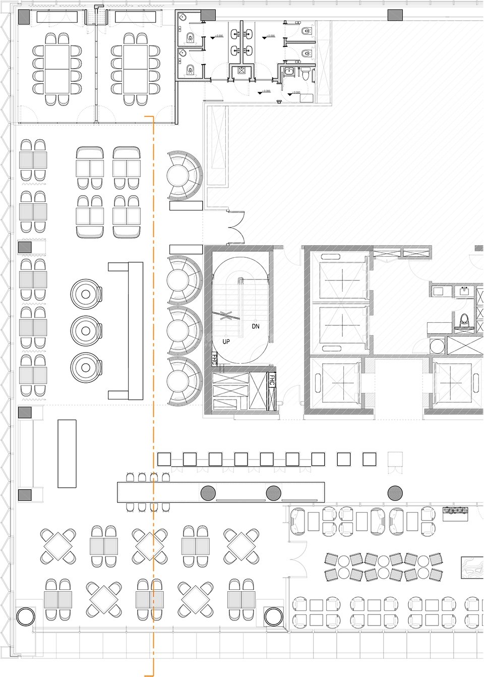
项目名称:四季酒店装修案例
项目面积:5500平米
装修风格:欧式风格
施工周期:120天
设计机构:苏州今和建筑装饰设计有限公司
施工单位:苏州今和建筑装饰设计有限公司
项目介绍:设计流程的起点是搜寻整个欧洲,从而在其深厚的美食传统中选择具体的地理位置和美食风格。很快我们锁定了地中海地区尤其是西西里岛的口感、风味和食材;西西里一直是中东和欧洲文化汇聚之地。餐厅将呈现一种新兴的区域性美食文化趋势。
通过与意大利及澳大利亚的工匠合作、结合精妙的设计方法、以及专注于多重感官的吸引力,我们创造的项目既植根于中东文化,同时又真实展现了地中海和西西里岛的饮食文化。在此项目中,设计师进一步将强烈的建筑手法带入到室内设计中,并创新地运用材料和灯光营造人与空间之间柔和中有惊喜的微妙感觉。各类手工打造的细节以最精细的状态呈现出来,与空间的昼夜光景水乳交融,让空间整体呈现出强大的表现力。
您的称呼
装修类型
装修面积
手机号码
立 即 领 取 200 元 装 修 红 包
每天仅限前20名咨询客户
相关案例
度假酒店设计装修案例
查看详情
酒店设计装修案例
查看详情
酒店装修案例
查看详情
悦莅酒店
查看详情
×
Close
信息登记
提交
按此要求装修多少钱
10秒获取装修报价清单
温馨提示:报价清单将发送到您的手机
装修预算材料清单
主材费: ?元
辅材费: ?元
人工费: ?元
软装费: ?元(参考价)
立即
计算
项目面积:5500平米
装修风格:欧式风格
施工周期:120天
设计机构:苏州今和建筑装饰设计有限公司
施工单位:苏州今和建筑装饰设计有限公司
项目介绍:设计流程的起点是搜寻整个欧洲,从而在其深厚的美食传统中选择具体的地理位置和美食风格。很快我们锁定了地中海地区尤其是西西里岛的口感、风味和食材;西西里一直是中东和欧洲文化汇聚之地。餐厅将呈现一种新兴的区域性美食文化趋势。
通过与意大利及澳大利亚的工匠合作、结合精妙的设计方法、以及专注于多重感官的吸引力,我们创造的项目既植根于中东文化,同时又真实展现了地中海和西西里岛的饮食文化。在此项目中,设计师进一步将强烈的建筑手法带入到室内设计中,并创新地运用材料和灯光营造人与空间之间柔和中有惊喜的微妙感觉。各类手工打造的细节以最精细的状态呈现出来,与空间的昼夜光景水乳交融,让空间整体呈现出强大的表现力。