18944225536
搜 索
首页
关于我们
公司简介
组织架构
资质证照
案例展示
办公空间
教育机构
餐饮空间
厂房车间
商业空间
酒店宾馆
商场超市
医院诊所
休闲娱乐
服务优势
装修资讯
公司资讯
行业资讯
装修知识
VR体验馆
联系我们
合作品牌
在线报价
当前位置:
网站主页
>
案例展示
>
商场超市
>
案例类型
商场超市
案例面积
500~700㎡
案例区域
吴中区
主设计师
徐大吉
案例介绍
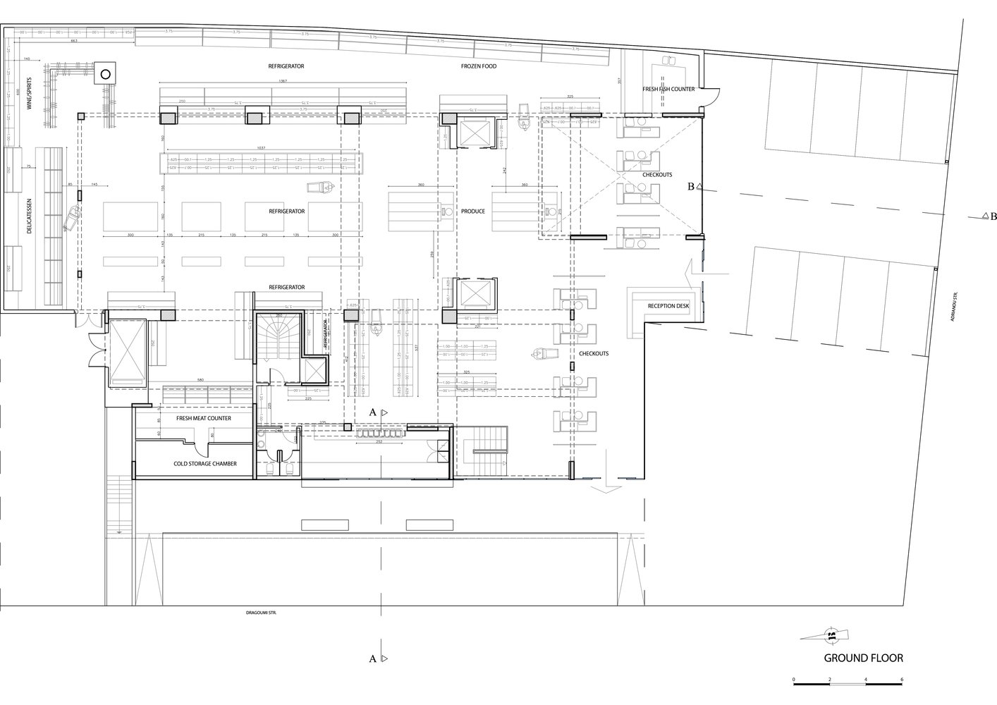
项目名称:商场超市装修
项目面积:550平米
装修风格:现代风
施工周期:35天
设计机构:苏州今和建筑装饰设计有限公司
施工单位:苏州今和建筑装饰设计有限公司
项目简介:超市共计两层,超市的浏览路径也随着楼梯和货架的重新放置而改变。在使用了定制家具后,每个销售分区之间的区别显得更加明显。
由于天花板的高度不足而无法使用假吊顶,设计团队想出了用垂直有机玻璃线作为传导光材T5荧光灯照明的代替吊顶照明结构。使得以定向刨花板为背景的天花板能够发出均匀的荧光。在楼层天花板的中央,一块预制的穿孔结构铝制天花吊顶悬挂在时令商品和农产品销售区的上方。
由于超市横跨于地铁站的上方,相比于其他大型超市,这里顾客更倾向与步行到达而不是驾车。这导致了我们采用与其他两个同品牌超市不同的设计策略。生鲜食品位于一楼,而日用杂货和其他商品则位于二层。
我们试图同过引入新材料地板,重新设计酒窖,从而强调与其他品牌店一致的品牌特征。出于保护目的的定向刨花板覆盖墙面直到天花板。商店的各个角落则用于面包房,鲜鱼,肉类,熟食等特定商品的销售。
您的称呼
装修类型
装修面积
手机号码
立 即 领 取 200 元 装 修 红 包
每天仅限前20名咨询客户
相关案例
岳西翠兰茶叶店
查看详情
大润发超市
查看详情
烟酒茶专卖店
查看详情
生活超市装修
查看详情
×
Close
信息登记
提交
按此要求装修多少钱
10秒获取装修报价清单
温馨提示:报价清单将发送到您的手机
装修预算材料清单
主材费: ?元
辅材费: ?元
人工费: ?元
软装费: ?元(参考价)
立即
计算
项目面积:550平米
装修风格:现代风
施工周期:35天
设计机构:苏州今和建筑装饰设计有限公司
施工单位:苏州今和建筑装饰设计有限公司
项目简介:超市共计两层,超市的浏览路径也随着楼梯和货架的重新放置而改变。在使用了定制家具后,每个销售分区之间的区别显得更加明显。
由于天花板的高度不足而无法使用假吊顶,设计团队想出了用垂直有机玻璃线作为传导光材T5荧光灯照明的代替吊顶照明结构。使得以定向刨花板为背景的天花板能够发出均匀的荧光。在楼层天花板的中央,一块预制的穿孔结构铝制天花吊顶悬挂在时令商品和农产品销售区的上方。
由于超市横跨于地铁站的上方,相比于其他大型超市,这里顾客更倾向与步行到达而不是驾车。这导致了我们采用与其他两个同品牌超市不同的设计策略。生鲜食品位于一楼,而日用杂货和其他商品则位于二层。
我们试图同过引入新材料地板,重新设计酒窖,从而强调与其他品牌店一致的品牌特征。出于保护目的的定向刨花板覆盖墙面直到天花板。商店的各个角落则用于面包房,鲜鱼,肉类,熟食等特定商品的销售。