18944225536
搜 索
首页
关于我们
公司简介
组织架构
资质证照
案例展示
办公空间
教育机构
餐饮空间
厂房车间
商业空间
酒店宾馆
商场超市
医院诊所
休闲娱乐
服务优势
装修资讯
公司资讯
行业资讯
装修知识
VR体验馆
联系我们
合作品牌
在线报价
当前位置:
网站主页
>
案例展示
>
商业空间
>
案例类型
商业空间
案例面积
300~500㎡
案例区域
吴中区
主设计师
徐烟玲
案例介绍
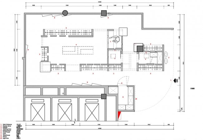
项目名称:潮牌女装店
项目面积:320平米
装修风格:现代、工业风
设计机构:苏州今和建筑装饰设计有限公司
施工单位:苏州今和建筑装饰设计有限公司
项目简介:在现代商场的环境下,每家店铺都在尽可能的展现展品,通过造景去吸引眼球,这样的环境总是难以让人放松下来。我们希望构筑一个内向的,放松的场所,在空间布置中,我们将产品“隐藏”在空间中的“通道”位置,同时利用回形动线的指引,让顾客轻松顺畅的完成产品的浏览,将产品作为路径的引导而非最终的目的地。
将产品“隐藏”在空间中的“通道”位置,利用回形动线的指引,让顾客轻松顺畅的完成产品的浏览。
我们希望店铺不只是商业销售空间,而是品牌精神的展示场所,是有同样审美及价值观人群的聚集场所,具备不同的空间属性,所以我们在空间的中心位置构筑了一个独立的空白空间,这里可以成为“画廊”、“休息室”、“培训教室”等各种属性的空间。
您的称呼
装修类型
装修面积
手机号码
立 即 领 取 200 元 装 修 红 包
每天仅限前20名咨询客户
相关案例
ECACA服装专卖店装修
查看详情
潮牌女装店
查看详情
迪柯尼男装专卖店装修
查看详情
儿童摄影店装修
查看详情
×
Close
信息登记
提交
按此要求装修多少钱
10秒获取装修报价清单
温馨提示:报价清单将发送到您的手机
装修预算材料清单
主材费: ?元
辅材费: ?元
人工费: ?元
软装费: ?元(参考价)
立即
计算
项目面积:320平米
装修风格:现代、工业风
设计机构:苏州今和建筑装饰设计有限公司
施工单位:苏州今和建筑装饰设计有限公司
项目简介:在现代商场的环境下,每家店铺都在尽可能的展现展品,通过造景去吸引眼球,这样的环境总是难以让人放松下来。我们希望构筑一个内向的,放松的场所,在空间布置中,我们将产品“隐藏”在空间中的“通道”位置,同时利用回形动线的指引,让顾客轻松顺畅的完成产品的浏览,将产品作为路径的引导而非最终的目的地。
将产品“隐藏”在空间中的“通道”位置,利用回形动线的指引,让顾客轻松顺畅的完成产品的浏览。
我们希望店铺不只是商业销售空间,而是品牌精神的展示场所,是有同样审美及价值观人群的聚集场所,具备不同的空间属性,所以我们在空间的中心位置构筑了一个独立的空白空间,这里可以成为“画廊”、“休息室”、“培训教室”等各种属性的空间。