18944225536
搜 索
首页
关于我们
公司简介
组织架构
资质证照
案例展示
办公空间
教育机构
餐饮空间
厂房车间
商业空间
酒店宾馆
商场超市
医院诊所
休闲娱乐
服务优势
装修资讯
公司资讯
行业资讯
装修知识
VR体验馆
联系我们
合作品牌
在线报价
当前位置:
网站主页
>
案例展示
>
休闲娱乐
>
案例类型
休闲娱乐
案例面积
100㎡以下
案例区域
吴江区
主设计师
陈航攀
案例介绍
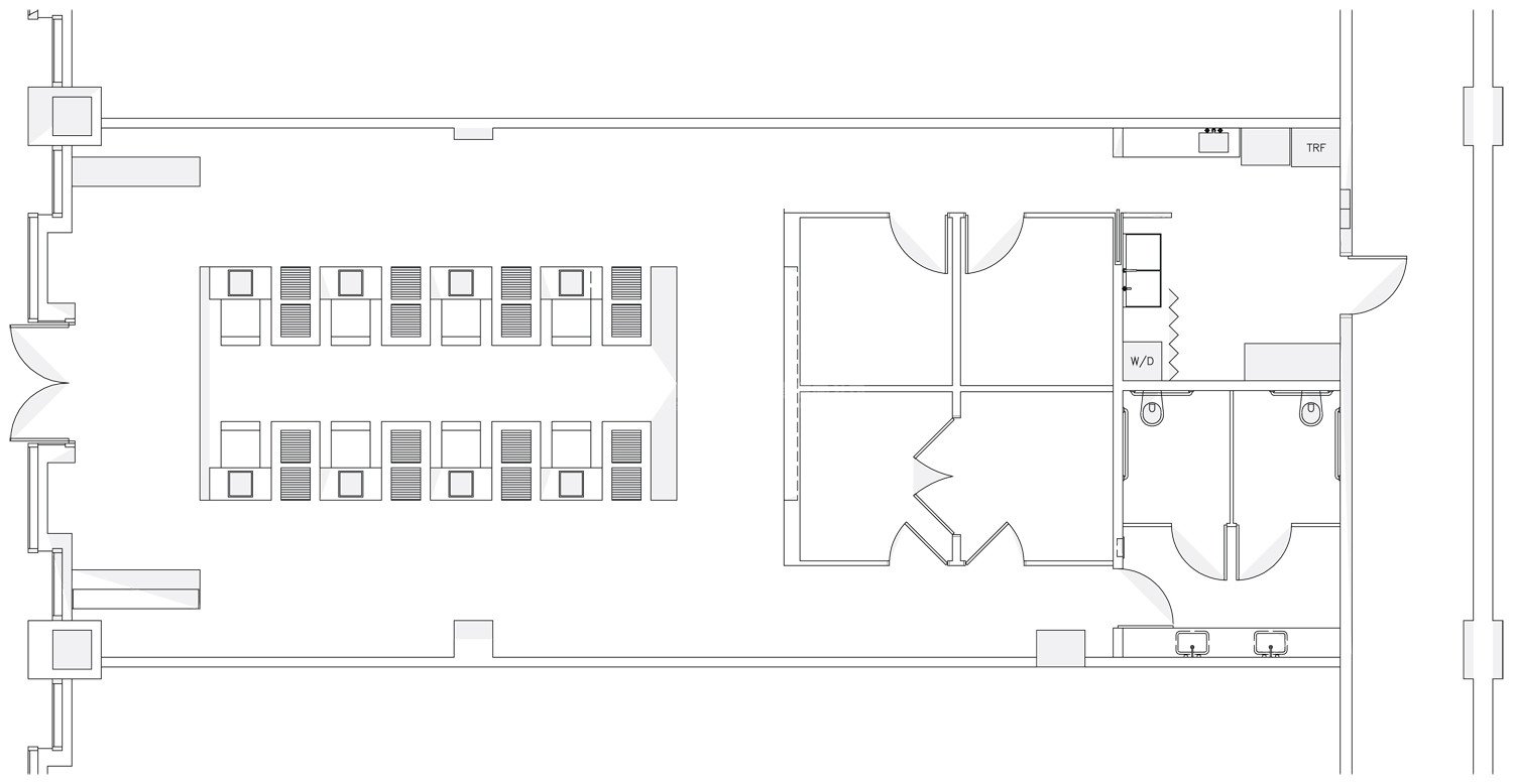
项目名称: SPA装修
项目面积: 100平米
装修风格: 现代风
施工周期: 32天
设计机构:苏州今和建筑装饰设计有限公司
施工单位:苏州今和建筑装饰设计有限公司
项目简介:中部设计了一条布满石头的小河,河上“漂浮”着公共理疗区
地板与天花均选用黑色,而其他全部设计为纯净的白色。
公共区域的理疗区从里面可以看到外面的景区。
在这样的一个精心设计、色彩布置合理的水疗会所更有利于顾客获得良好的心里感受,顾客喜欢,生意自然就会兴旺发达起来。
水资源结合沐浴按摩涂抹保养品和香熏来促进新陈代谢,满足人体视觉 味觉触觉、嗅觉和思考达到一种身心愉快的享受。所以其装修设计必须排水好,而且装饰的时候不仅要考虑到实际的享受,视觉上的享受也是非常重要的。
您的称呼
装修类型
装修面积
手机号码
立 即 领 取 200 元 装 修 红 包
每天仅限前20名咨询客户
相关案例
酒吧装修
查看详情
酒吧装修效果图
查看详情
“周末之家”酒吧
查看详情
电竞馆
查看详情
×
Close
信息登记
提交
按此要求装修多少钱
10秒获取装修报价清单
温馨提示:报价清单将发送到您的手机
装修预算材料清单
主材费: ?元
辅材费: ?元
人工费: ?元
软装费: ?元(参考价)
立即
计算
项目面积: 100平米
装修风格: 现代风
施工周期: 32天
设计机构:苏州今和建筑装饰设计有限公司
施工单位:苏州今和建筑装饰设计有限公司
项目简介:中部设计了一条布满石头的小河,河上“漂浮”着公共理疗区
地板与天花均选用黑色,而其他全部设计为纯净的白色。
公共区域的理疗区从里面可以看到外面的景区。
在这样的一个精心设计、色彩布置合理的水疗会所更有利于顾客获得良好的心里感受,顾客喜欢,生意自然就会兴旺发达起来。
水资源结合沐浴按摩涂抹保养品和香熏来促进新陈代谢,满足人体视觉 味觉触觉、嗅觉和思考达到一种身心愉快的享受。所以其装修设计必须排水好,而且装饰的时候不仅要考虑到实际的享受,视觉上的享受也是非常重要的。